
BCX Cross Flow Closed Circuit Cooling Tower
The BHX series composite flow closed-loop cooling tower combines crossflow and counterflow heat exchange methods. The process fluid circulates within a closed coil, achieving cooling through evaporative heat exchange between sprayed water and air. It features high heat exchange efficiency, compact structure, and excellent water-saving performance, and is widely used in industrial cooling systems.
- High heat exchange efficiency with reduced dry spots and scaling
- Easy maintenance with large access space
- Modular design for convenient transport and installation
- Sloped basin design for easy cleaning and drainage
Descriptions
BHX Combined Flow Closed Circuit Cooling Tower Principle of Operation
The process fluid to be cooled is circulated within a serpentine cooling coil, which is continually wetted on the outside by the spraying water system. The heat is transferred by the wall of coil, becomes saturated steam when it meets spray water and air. Then the heat will be discharged into atmosphere by fan, but water will be collected in the basin by drift eliminator for recirculated spraying. The temperature of spraying water is reduced by PVC fill. spraying water flows in the same direction as the fresh air, to cool coil mainly by significant heat conduction way, which is especially suitable to the cases when cooling tower outlet temperature is much closer to the wet bulb temperature.
Product Characteristics:
- Excellent Heat Exchange Performance
Parallel air and water path as well as the combination of coils and PVC fill, this effectively avoid the dry spot and scale formation, and improve the heat exchange performance.
- Convenient Maintenance
Huge maintenance space makes it convenient to inspect the product. Technicians can enter the cooling tower during operation time.
- Convenient Transportation and Installation
The cooling tower is designed to be standard upper body part and bottom body part, making it is able to be shipped separately and saves transportation and installation cost.
- Slope Water Basin Design
Suspended PVC fill and sloped water basin floor toward the drain facilitate cleaning
Spcifications
| Model | Cooling Capacity (KW) | Fan Quantity | Fan Power(kw) | Per Unit Airflow (m³/h) | Pump Quantity | Pump Power | Per Unit Water Flow (m³/h) | Dimension |
| BHX-30 | 33 | 1 | 3 | 46000 | 1 | 1.1 | 36 | 1825*2380*4220 |
| BHX-40 | 43 | 1 | 4 | 60000 | 1 | 1.1 | 53 | 1825*2380*4220 |
| BHX-50 | 51 | 1 | 5.5 | 65000 | 1 | 1.1 | 53 | 1925*2380*4220 |
| BHX-60 | 61 | 1 | 5.5 | 75000 | 1 | 1.5 | 70 | 1925*2980*4240 |
| BHX-70 | 70 | 1 | 7.5 | 87000 | 1 | 1.5 | 70 | 1925*2980*4450 |
| BHX-85 | 88 | 2 | 5.5 | 65000 | 1 | 2.2 | 100 | 3570*2380*4240 |
| BHX-100 | 105 | 2 | 7.5 | 71000 | 1 | 2.2 | 100 | 3570*2380*4470 |
| BHX-125 | 128 | 2 | 5.5 | 75000 | 1 | 3 | 150 | 3770*2680*4870 |
| BHX-150 | 152 | 2 | 7.5 | 87000 | 1 | 3 | 150 | 3770*2980*4870 |
| BHX-175 | 176 | 3 | 5.5 | 71000 | 1 | 4 | 180 | 5610*2680*4910 |
| BHX-200 | 201 | 3 | 7.5 | 79000 | 1 | 4 | 180 | 5610*2680*4910 |
| BHX-225 | 226 | 3 | 7.5 | 87000 | 1 | 5.5 | 233 | 5610*2980*4910 |
| BHX-250 | 260 | 3 | 7.5 | 100000 | 1 | 5.5 | 233 | 5610*3410*4910 |
| BHX-300 | 300 | 4 | 7.5 | 87000 | 1 | 7.5 | 286 | 7450*2980*4910 |
| BHX-350 | 350 | 4 | 7.5 | 100000 | 2 | 3 | 150 | 7450*3210*4910 |
| BHX-400 | 420 | 4 | 11 | 120000 | 2 | 3 | 150 | 7450*3510*4910 |
| BHX-450 | 460 | 5 | 7.5 | 100000 | 2 | 4 | 180 | 8630*3510*4910 |
| BHX-500 | 505 | 5 | 11 | 120000 | 2 | 4 | 180 | 9580*3510*4910 |
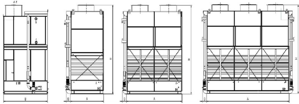
Dimensions

FAQs
Q1:How does a crossflow closed cooling tower work?
The process fluid flows inside a coil, while spray water is distributed over the coil surface. Air moves horizontally through the tower, evaporating a portion of the water and removing heat from the coil indirectly.
Q2:What makes a closed circuit crossflow cooling tower different from a counterflow design?
The key difference lies in how air interacts with the water flow. In a crossflow cooling tower, air moves horizontally across the falling spray water, while in a counterflow design, air flows vertically in the opposite direction. This structural difference allows crossflow towers to operate with lower air resistance, which typically results in quieter performance and reduced energy consumption, while also making internal components more accessible for maintenance.
Q3:Why do some users prefer crossflow over counterflow cooling towers?
Many users choose crossflow designs because they offer a better balance between performance and practicality. While counterflow towers can achieve slightly higher thermal efficiency, crossflow towers are often favored for their lower noise levels, easier maintenance access, and more energy-efficient operation in real-world conditions.
Q4:Does the crossflow design offer advantages in energy efficiency?
Yes, crossflow cooling towers are often more energy-efficient because the horizontal airflow path reduces resistance within the system. This allows the fan to operate with lower power consumption, which can lead to noticeable energy savings over long-term operation.
Q5:Which type of user or industry benefits most from crossflow closed cooling towers?
Crossflow closed cooling towers are commonly selected by users who prioritize stable performance, lower operating noise, and ease of maintenance. They are especially well-suited for HVAC systems, general industrial cooling, and applications where reliability and lifecycle cost are more important than pushing maximum thermal efficiency.
Downloads
- HDC Double-acting large-tonnage oil cylinder brochure
- HDC Double-acting large-tonnage oil cylinder brochure
- HDC Double-acting large-tonnage oil cylinder brochure
Contact
While we're still finalizing our content, we've included this placeholder text to occupy the space temporarily. Once our content is ready, we'll replace this text with the real deal.

